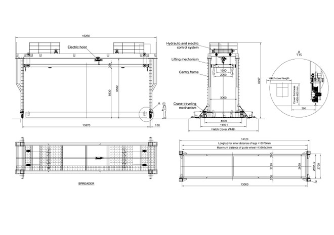
The hatch cover gantry crane, an excellent helper for lifting on your ship, is primarily designed for lifting and handling cabin covers, as well as assisting in cargo handling operations. The crane is installed on the deck of the ship and runs along a track, covering the entire working area of the deck. It features a double main girder gantry structure and two sets of lifting systems, allowing for simultaneous lifting and lowering through its mechanisms, using hydraulic or electric drive modes.
Haitai hatch cover crane supports BV and CCS certification and others, ranging from 10 to 40 tons.


| Capacity (t) | Span (m) | Height (m) | Lifting speed(m/min) |
| 10t | 3~10 | 5~8 | 20 |
| 15t | 3~10 | 5~8 | 20 |
| 20t | 5~10 | 6~12 | 25 |
| 25t | 10~20 | 6~12 | 25 |
| 30t | 10~20 | 6~12 | 30 |
| 35t | 15~20 | 12~16 | 30 |
| 40t | 15~20 | 12~16 | 35 |










We are a factory, with a price advantage. The specific price needs to be calculated according to parameters and configuration and then quote our best price to you accordingly.
You need provide the capacity, lifting height, span, the boat width, hatch covers’ dimensions. If you have more details, it will be better.
Yes, we can provide CCS and BV certifications.
12 months from the date of bill of lading.
About 40 days We can try our best to shorten for you according to your actual equipment solution.
We will provide the installation plan and drawings to you after production. If you need, our engineers can come to your project site to guide your installation work. These fee details will be listed in our quotation document.
Standard export package. All parts are shipped in containers and the electrical parts are packed in wooden cases.
