The rubber tyred gantry crane is a large lifting equipment designed for easy movement and stacking of materials in spacious outdoor areas without fixed tracks. It plays an important role in engineering construction and handles many complex and difficult matters. The rubber tyre gantry crane has various steering modes, flexible maneuverability and strong adaptability to different sites. It is driven by three types of power, such as hydraulic power, electric power and a combination of both.
Haitai Crane is committed to selecting the right rubber tyred gantry cranes to meet your specific requirements. We support customization with lifting capacity 10 to 900 tons, ensuring you receive professional lifting solutions tailored to your needs.




| Capacity (t) | Span (m) | Height (m) | Application site | Material lifting |
| 20t | 6.8 | 5 | Steel | Pipe |
| 30t | 8 | 6 | Steel | Coil |
| 40t | 8.5 | 7 | Steel | Plate |
| 50t | 9.3 | 7.5 | Wind | Wind Blade |
| 60t | 12.1 | 11 | Wind | Wind Tower |
| 70t | 14 | 7.5 | Concrete casting yard | Beam |
| 80t | 9.5 | 6.5 | Concrete casting yard | Girder |
| 100t | 16 | 9 | Concrete casting yard | Girder |
| 120t | 10 | 9.5 | Concrete casting yard | Segment girder |
| 130t | 12 | 9 | Bridge Construction | Beam |
| 140t | 14 | 7.5 | Bridge Construction | girder |
| 150t | 34 | 14.5 | Concrete casting yard | Beam |
| 200t | 40 | 30 | Shipbuilding yard | Boat part |
| 300t | 42 | 35 | Shipbuilding yard | Boar part |












It is generally customized according to the client’s need and the lifting range is 10t-900t.
In order to customize the rtg crane to suit you better, you need to provide us with some relevant information:
The rtg crane will undergo pre-assembly and factory testing before delivery to confirm its performance and functionality.
We offer clients two plans:
a: We support the assembly and commissioning through free online remote guidance, saving customers a lot of time and cost.
b: Haitai Crane will send engineers to the site to guide the on-site commissioning at client’s cost.
The delivery cycle is generally 60 to 80 days, there are 20 days of factory commissioning test time, we follow strict production and testing standards to produce high quality products for you.
Our product is guaranteed for one year. Within 1 year, if there is a failure or part damage due to quality problems, our company is responsible for providing replacement parts free of charge.
Hoisting prefabricated beams, including I beams, T beams, U beams, section beams, full span beams. In addition, it can also be used for lifting steel pipes, containers, tanks, modular house, wind turbines, engines and so on.
Rubber tyre gantry crane is a large lifting equipment, used to handle large, overweight materials, can be used in infrastructure construction, prefabricated beam yard, wind tower energy, modular housing construction, steel industry and other fields.
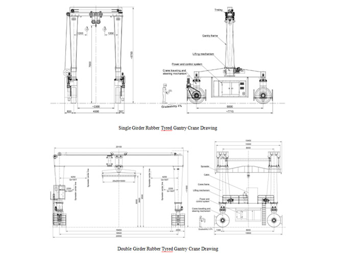
The types of rubber tyred gantry cranes are mainly including single girder, double girder, U type, A type and L type.
RTG crane has strong mobility and general performance, not restricted by the track. It has a wide range of movement and can be used to lift kinds of objects in different occasions.
RMG crane needs to operate on fixed tracks and in fixed working areas. It is generally used in container yards, ports and railways for hoisting containers.
The rubber tyre gantry crane can be divided into three modes: hydraulic drive, electric drive and electro-hydraulic mix-drive.
We will send you the detailed working table, we need to get the basic information and the description of the working condition, the size of the material to be handled, the size of the site and other details.
● Night light
● Emergency stop system
● Crane Travelling limit switch
● Audible and visual alarm
● Weight overload protection device
● Voltage lower protection function
The maintenance time is not uniform due to the different time required for parts, we will give a maintenance manual. It will be sent together with the goods, please follow the manual for maintenance, to ensure work efficiency, and the machine life is longer.
Yes, our rubber tyre gantry crane can be equipped with pneumatic tires or solid tires. It will be depend on the actual situation.
We will provide the user manual to guide the end user to operate our rubber tyre gantry crane easily.
Generally, one set of our rtg crane needs one operator. He can control the crane by remote control or drive in the cabin. It is very convenient.
Haitai will be responsible for all the problems of the customer during warranty period. After the end of the warranty period, our after-sales team also maintains communication and contact with on-site personnel at any time, analyzes technical problems and gives solutions. If necessary, we can send engineers to support.
Compact and flat road. It’s better to travel on concrete road. You can refer to the projects we have completed.
After we design for you, we will list the ground pressure in the drawing. You can then confirm this parameter with your geological engineer.
The Remote-Control panel has a selection button. There are fast and slow options for no-load speed and heavy-load speed.
As for the operation steps of the remote control, we will provide detailed operation guidance documents after the production is complete.
The steel surface of the steel structure main member is treated with shot blasting before coating, and the surface reaches the Sa2.5 level of GB8923 (ISO8501-1). After shot blasting, spray paint is carried out. The primer is epoxy zinc-rich primer. Two times of epoxy anti-rust primer is applied in the middle, and two times of top coat is applied at last. The total thickness of the painting is not less than 120μm. Finish coat surface uniform, fine, bright, uniform color. The adhesion conforms to the first-class standard specified in GB9286. Finish coat type and color can be specified by the client.
